









Transformation d'un appartement sous les combles
Morrens, Vaud, 2022
Client: privé
Photographies: Jagoda Wisniewska



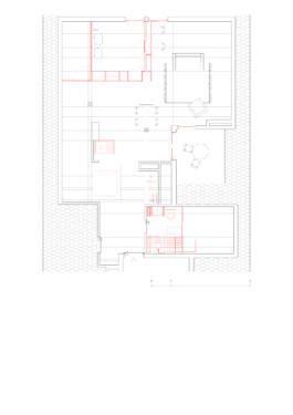
Ce petit appartement situé sous les combles d’un immeuble de 5 appartements en PPE a été repensé de manière à offrir plus d’espaces de manière condensée, rationnelle et ludique.
Ainsi, la chambre à coucher a été conçue comme une « boîte » multifonctions permettant d’intégrer non seulement l’espace nuit, mais également un dressing à l’intérieur, des bureaux rabattables, des étagères-bibliothèque et plusieurs tiroirs de rangements côté extérieur. L’emplacement de la boîte a aussi été pensé pour offrir un maximum de lumière dans l’espace du séjour-bureau à l’inverse du plan existant.
En plus de l’ajout de deux ouvertures en toiture, le lissage des murs, le ponçage des poutres et les nouvelles finitions de la cuisine et de la salle de bain, participent conjointement à rendre cet appartement mansardé plus lumineux.
↑










Transformation d'un appartement sous les combles
Morrens, Vaud, 2022
Client: privé
Photographies: Jagoda Wisniewska



Ce petit appartement situé sous les combles d’un immeuble de 5 appartements en PPE a été repensé de manière à offrir plus d’espaces de manière condensée, rationnelle et ludique.
Ainsi, la chambre à coucher a été conçue comme une « boîte » multifonctions permettant d’intégrer non seulement l’espace nuit, mais également un dressing à l’intérieur, des bureaux rabattables, des étagères-bibliothèque et plusieurs tiroirs de rangements côté extérieur. L’emplacement de la boîte a aussi été pensé pour offrir un maximum de lumière dans l’espace du séjour-bureau à l’inverse du plan existant.
En plus de l’ajout de deux ouvertures en toiture, le lissage des murs, le ponçage des poutres et les nouvelles finitions de la cuisine et de la salle de bain, participent conjointement à rendre cet appartement mansardé plus lumineux.